


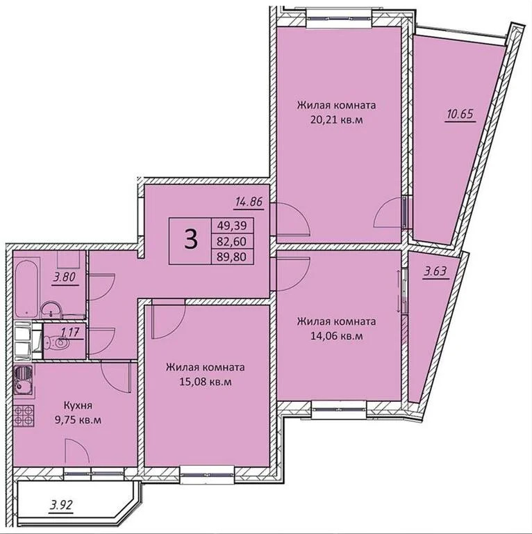
В городском округе Домодедово, мкр. Южный на улице Курыжова, д.21 продается 3 комнатная квартира (фактически 4 комнатная квартира) общей площадью 94 кв.м. Квартира располагается на 17 этаже 17 этажного монолитного дома 2014 года постройки. Квартира в отличном состоянии, сделан капитальный собственный (не муниципальный) ремонт, продается вместе с техникой и мебелью, полностью готова для проживания. Кухня со встроенным кухонным гарнитуром 9.7 кв.м., балкон, жилые комнаты 20/15/14/10.6 кв.м., раздельный санузел с натяжными потолками, большой коридор 15 кв.м. со встроенным шкафом. Полы из ламината, пластиковые стеклопакеты, хорошая входная железная дверь. В шаговой доступности: школа, детский сад, сетевые продуктовые магазины, лес, речка, остановка общественного транспорта как до Москвы, так и до ж/д станции Домодедово.
В собственности с июня 2018 года, основание права собственности – договор купли-продажи, 2 взрослых собственника, материнский капитал не использовался, квартира без перепланировок, никто не прописан, свободная продажа, тихие и спокойные соседи.
14500000 руб. | 219670 $ | 192507 €