Развернуть карту

Аренда склада, Домодедово, Домодедово г. о., деревня Заболотье, 18000 руб.

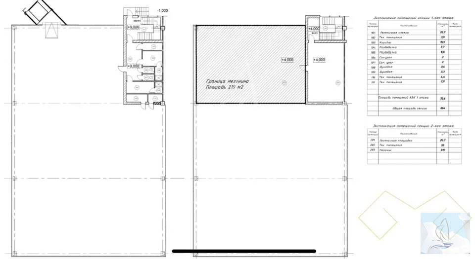
  • Общая площадь, м²896.0
Адрес: Подмосковье, Домодедово г. о., Домодедово, деревня Заболотье

АРЕНДА ОТ СОБСТВЕННИКА!

Предлагаем новый склад в аренду, класс А+, от 896 кв.м. до 2880 кв.м.
Новый производственно-складской многофункциональный индустриальный комплекс Весна RBNA,

Прямая аренда от 896 кв.м, готов к заезду!

Расположение: МО, г. Домодедово, д. Заболотье, Симферопольское шоссе (М2) 19 км от МКАД, Новокаширское шоссе (М4) 24 км от МКАД.

Остановка общественного транспорта 5 мин. пешком. Ж/д станция(МЦД) 20 минут, на транспорте. От станции метро Аннино 25 минут на транспорте.

Стоимость:включая НДС.
в месяц за 1 м2 - 1500
+ ОПЕКС 120 - 1 м2

Расход электроэнергии, воды и отопление отдельно. Есть площади с АБК. Договор на 11 мес.

Презентация и дополнительная информация по запросу от потенциального резидента.

ХАРАКТЕРИСТИКИ ПОМЕЩЕНИЙ:

Рабочая высота склада 8 м, Шаг колон 12 х 24, Полы антипыль, Нагрузка на пол 6 т./ кв. м., Уровень пола 1,1 м Усиленная кровля - Технониколь (возможность установки климатического и вентиляционного оборудования на кровле)

Доковые ворота - Hоrmann c герметизаторами и уравнительными платформами.

ИНЖЕНЕРНЫЕ И ИНФРАСТРУКТУРНЫЕ РЕШЕНИЯ: Подключение электрической мощности, возможность докупить любую мощность. Возможность установки климатического оборудования для мультитемпературного склада. Система водоотведения увеличенного диаметра (d600) и локальные очистные сооружения. Отопление-газ. Техническая возможность дооснащения дополнительными воротами, нулевыми воротами и внешним пандусом.

Парковка для легковых и грузовых автомобилей, аренда холодного склада рядом обсуждается.

Офисное здание на территории, кафе-столовая.

Звоните, записывайтесь на просмотр!



Вы могли также искать:
аренда склада, аренда производственного помещения, аренда помещения свободного назначения, аренда промышленного цеха, аренда помещения под производство, склад в аренду, производственное помещение в аренду, цех в аренду, аренда помещения под склад, помещение свободного назначения в аренду, производственная база в аренду, аренда ангара, аренда отапливаемого склада, аренда холодного склада, аренда помещения под мастерскую, аренда помещения под пищевое производство, аренда склада с кран-балкой, аренда помещения под швейный цех, склад, производственное помещение, помещение свободного назначения, свободного назначения, псн, промышленный цех, помещение под производство, цех, помещение под склад, производственная база, ангар, отапливаемый склад, холодный склад, помещение под мастерскую, помещение под пищевое производство, склад с кран-балкой, помещение под швейный цех, склад ответственного хранения, складские помещения, складское хранение, швейный цех, пищевое производство, производство, автосервис, производство мебели, деревообработка, металлообработка, сборочный цех, упаковочное производство, мастерская по ремонту техники, производство пластиковых изделий, ремонтный цех, производство металлоконструкций, производство окон и дверей, склад интернет-магазина, распределительный центр



18000 руб. | 273 $ | 239 €

Анна Данилина

+7 (929) 673-74-02

Изменено: 22 Dec 2025, 23:25:12